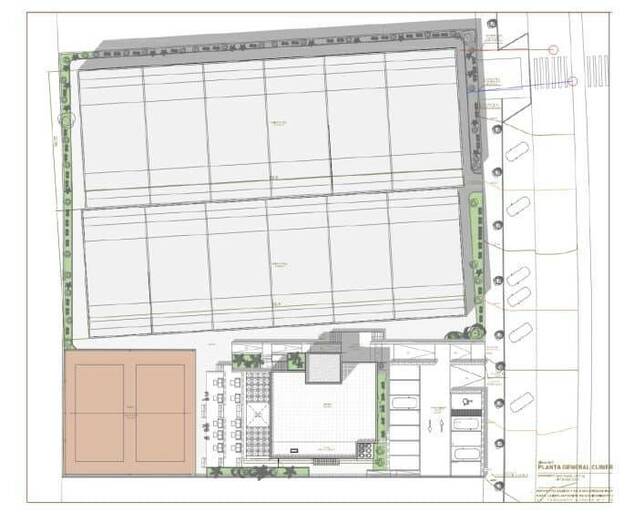
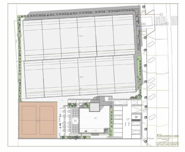
En las próximas semanas comenzarán las obras de construcción de un nuevo Club de Pádel en la localidad madrileña de Alcobendas. De esta manera la zona norte de Madrid dispondrá de un club premium sobre una parcela de 5 mil metros cuadrados situada en la Avda. Fernando Alonso, nº7.
El club dispondrá de 12 pistas de pádel cubiertas, 2 pistas de voley playa al aire libre, una casa club de más 500 metros cuadrados con un importante servicio de restauración, excelentes vestuarios y un aparcamiento privado con servicio de recarga eléctrica. En definitiva, los mejores servicios para todas las personas que decidan utilizar estas modernas instalaciones.
Los promotores de esta nueva instalación deportiva serán Ricardo de las Heras Baraja y José Barranco Gómez, socios fundadores de School Padel Center, empresa con más de 15 años de experiencia en la gestión de instalaciones deportivas de pádel.
Para Ricardo de las Heras, CEO de School Padel Center, “estamos muy ilusionados con este nuevo proyecto. Lo estamos diseñando con mucho cariño para que haya espacios diferenciados que den servicio a las familias de nuestro entorno, así como a las empresas que quieren realizar sus eventos en nuestro Centro”.
Esta nueva instalación deportiva dedicada fundamentalmente al padel pretende tener un ambiente familiar con escuela de iniciación para niños y mayores, academia de competición y campus de verano. Sin perder de vista la posibilidad de organizar eventos para empresas y clientes. En definitiva esta instalación deportiva será un hub de ocio y deporte para todo el importante entramado empresarial de Alcobendas y localidades más próximas.
El pádel ha experimentado un crecimiento extraordinario en número de practicantes en los últimos años. Este nuevo club de pádel responderá a las necesidades y expectativas de aquellos jugadores que buscan practicar su deporte favorito con todas las comodidades a su alcance.








